総社市、倉敷市、真備エリアを中心とした中古住宅、中古マンション、土地などの不動産売買、新築(注文住宅)、リフォーム

総社市、倉敷市、真備エリアを中心とした中古住宅、中古マンション、土地などの不動産売買、新築(注文住宅)、リフォーム

お問い合わせ0120-106-710


NEW

総社市久代 中古戸建(リフォーム済み)

販売価格 専有面積
階数 / 間取り
築年月 取引態様
所在地
交通
総社店
 

物件写真


物件詳細  

物件種別 間取り
価格 専有面積
共益費・管理費 バルコニー面積
修繕積立金 向き
階数 / 建物構造
管理人 管理形態
建築年月 新築・未入居区分
現況 引渡・入居時期
駐車場区分 駐車場料金
駐車場備考
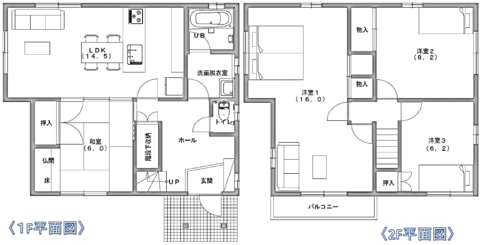
間取り内訳          
周辺環境
設備・条件
小学校 中学校
物件番号 情報有効期限

物件お問合せフォーム 物件番号

    物件情報
    必須お問い合わせ内容
    必須お名前
    必須ふりがな
    必須メールアドレス

    ※入力頂いたメールアドレス宛てに確認のメールをお送りいたします。

    必須ご住所

    ※ハイフンなし(半角数字のみ)



    必須電話番号

    ※市外局番から入力してください

    ※お預かりいたしましたお客様情報は厳重に管理させていただき、査定などの目的以外には使用致しません。
    [個人情報保護方針]